Dieses großzügige Einfamilienhaus mit zwei separaten Einliegerwohnungen in begehrter Lage von Mainz-Bretzenheim bietet eine seltene Gelegenheit für Mehrgenerationenwohnen oder individuelles Wohnen mit Vermietungspotenzial.
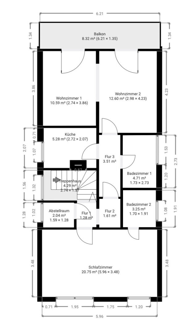
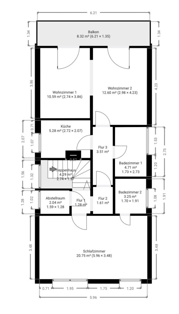
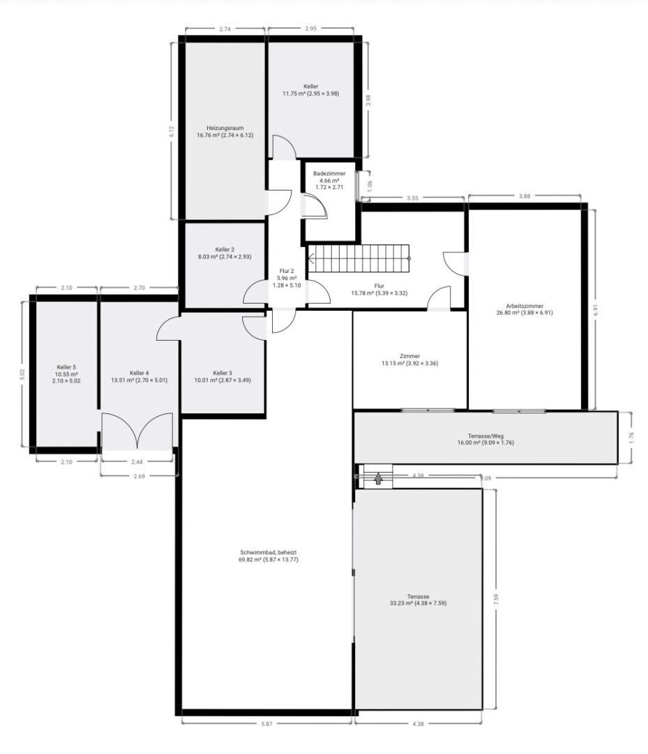
Auf einem weitläufigen Grundstück von ca. 1.074 m² erstreckt sich die Immobilie mit einer beeindruckenden Wohnfläche von ca. 337 m² über drei Ebenen (Untergeschoss, Erdgeschoss und Obergeschoss). Insgesamt stehen 9 Zimmer zur Verfügung, darunter 5 Schlafzimmer sowie großzügige Wohn-, Ess- und Arbeitsbereiche und ein Gästezimmer. Vier Badezimmer sowie ein zusätzliches Gäste-WC sorgen für hohen Komfort, während 3 vorhandene Küchenanschlüsse flexible Nutzungsmöglichkeiten eröffnen.
Das Haus befindet sich aktuell im leerstehenden Zustand und ist insgesamt sanierungsbedürftig – ideal für Käufer, die ihre eigenen Wohnideen verwirklichen oder ein wertsteigerndes Projekt realisieren möchten.
Ein besonderes Highlight ist der stillgelegte Indoorpool im Untergeschoss, der sich hervorragend in einen luxuriösen Wohnbereich umgestalten lässt. Außen überzeugt die Immobilie mit einem sehr großzügigen Garten, zwei großen Terrasse und einem Balkon, sowie einem Hühnerstall mit angebautem Freilaufgehege – perfekt für Naturliebhaber und Familien.
Abgerundet wird das Angebot durch eine Garage sowie zwei Außenstellplätze in der Hofeinfahrt. Die Gas-Zentralheizung wurde im Jahr 2012 erneuert.
Diese Immobilie vereint großzügige Flächen, vielseitige Nutzungsmöglichkeiten und enormes Entwicklungspotenzial in attraktiver Lage.




























